Реализация объекта недвижимости приостановлена

Информация о коттедже

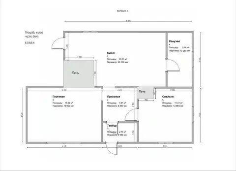
41.0 м2
Площадь
1
Этажность
12.0 cоток
Участок

Дополнительная информация

Дом продаётся вместе с участком
есть
Развернуть

Дом в Костромская область, Буй ул. Менжинского, 29 (42 м)

ВОЗМОЖНА РАССРОЧКАПродается уютный дом площадью 41,8 кв. м на обширном земельном участке в 12.94 соток, расположенный в живописном и спокойном районе. Это идеальное место для тех, кто ценит комфорт и тишину вдали от городской суеты Дом требует косметического ремонта, что позволяет вам создать пространство по своему вкусу и предпочтениям. Внутри имеется газовое отопление и центральный водопровод, что обеспечит вам комфорт в любое время года. Также в доме есть удобный санузел, что добавляет дополнительный комфорт.На участке расположены плодовые деревья, которые не только украсят ваш сад, но и подарят вам вкусные и свежие плоды. Кроме того, на территории имеется отличная баня и гараж, что станет настоящим преимуществом для любителей отдыха и автолюбителей.Всего в нескольких минутах ходьбы находится живописная речка, где вы сможете наслаждаться прогулками на свежем воздухе. В шаговой доступности расположены школы, детские сады, магазины, дом культуры и стадион, что делает это место идеальным для семейной жизни.Не упустите возможность стать владельцем этого замечательного дома Звоните, и я с удовольствием расскажу вам все детали и организую просмотр. Ваш новый уютный дом ждет вас . Дополнительно оплачивается комиссия с покупателя. Код пользователя: 168261Номер в базе: 3851061

Читать полностью

    Реализация объекта недвижимости приостановлена

    Не нашли подходящего объявления?

    Оставьте заявку, и наши риэлторы подберут купить дом в районе Буя

    (0)