650 000 Р 8 030 $ или 6 960

Информация о квартире

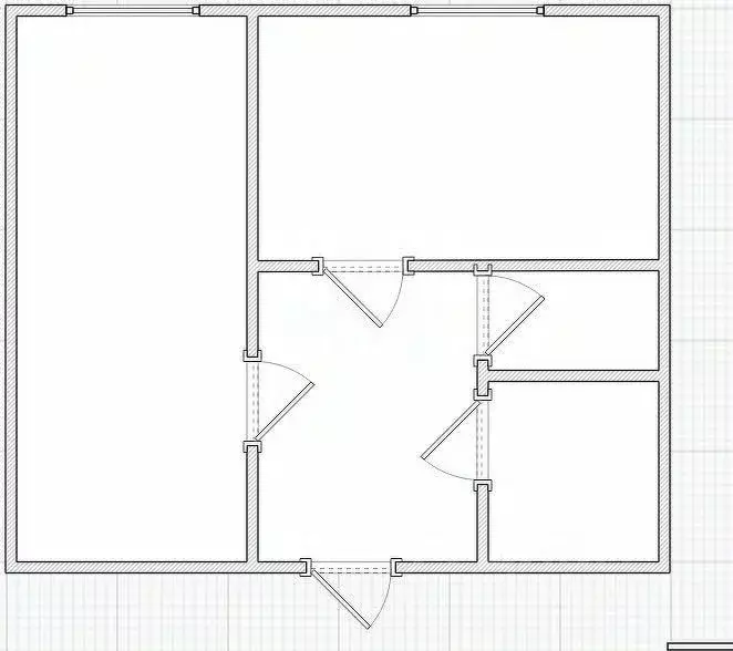
36 м2
Площадь
23 м2
Жилая
8 м2
Кухня
1
Комната
2
Этаж
3
Этажность
Развернуть
Агент
+7 (910) 191-17-85
Начать чат с агентом

1-к кв. Костромская область, Буйский район, Центральное с/пос, д. ...

ВОЗМОЖНА РАССРОЧКАДанная однокомнатная квартира площадью 36 кв. м расположена на втором этаже трехэтажного панельного дома в Буйском районе, в 15 км от города Буй. Подъезд к деревне обеспечен асфальтированной дорогой. Планировка отличается рациональностью: окна выходят на две стороны, обеспечивая хорошую инсоляцию и проветривание помещения. Все окна заменены на современные пластиковые стеклопакеты, балкон застеклен, что увеличивает полезное пространство и комфорт в любое время года. Квартира находится в отличном состоянии, выполнен косметический ремонт: санузел совмещен, полностью облицован кафелем. В квартире установлены дорогие качественные межкомнатные двери. Центральное отопление, во всей квартире произведена замена на качественные радиаторы. Водоснабжение от скважины. Для автомобилистов предусмотрены парковочные места у дома,. Возможность обустройства собственного земельного участка. Инфраструктура деревни включает школу, детский сад, медпункт, магазины, почтовое отделение. В деревне устойчивое соединение интернета.Транспортная доступность обеспечена регулярным автобусным сообщением с городом три раза в неделю. Ключевым преимуществом является расположение в тихом, экологически чистом месте в непосредственной близости от леса и реки, что создает благоприятную среду для постоянного проживания. Объект подходит для приобретения с использованием материнского капитала. Рассматривается вариант обмена на недвижимость в Галиче. Квартира реализуется единственным взрослым собственником, свободна от любых обременений.. Объект можно приобрести в ипотеку с процентной ставкой от 14,99 .Дополнительно оплачивается комиссия с покупателя. Код пользователя: 188700Номер в базе:

Читать полностью

    Для того, чтобы купить однокомнатную квартиру по адресу: Кренево, ул. Новая, 1, позвоните по телефону +7 (910) 191-17-85. Торопитесь! Объявление №30091207558 о продаже однокомнатной квартиры опубликовано Вчера.

    Позвонить Написать
    650 000 Р8 030 $ или 6 960
    Агент
    +7 (910) 191-17-85
    Начать чат с агентом
    Похожие предложения
    3-к кв. Костромская область, Буй ул. Карла Маркса, 42 (48.2 м) - Фото 1
    3-к кв. Костромская область, Буй ул. Карла Маркса, 42 (48.2 м) - Фото 2
    3-комнатная квартира, общая площадь 48м², жилая 30м², кухня 6м²

    ВОЗМОЖНА РАССРОЧКАПродается просторная 3-комнатная квартира общей площадью 48,2 м2 на втором этаже двухэтажного дома. Окна выходят во двор. Дом расположен в центральной части города. Поблизости находятся объекты культурного наследия, сетевые магазины...
    • 48 м²
    • 3-ком
    • 2/2 эт.
    • деревянный
    650 000 Р
    Агент
    +7 (910) Показать номер
    Посмотреть контакты
    1-к кв. Костромская область, Буйский район, Чистые Боры городское ... - Фото 1
    1-к кв. Костромская область, Буйский район, Чистые Боры городское ... - Фото 2
    1-комнатная квартира, общая площадь 39м², жилая 20м², кухня 12м²

    ВОЗМОЖНА РАССРОЧКАОднокомнатная квартира площадью 40 кв.м. расположена на третьем этаже девятиэтажного панельного дома в центре поселка Чистые Боры. Сделан косметический ремонт. Практичность и безопасность обеспечены установленными пластиковыми стеклопакетами...
    • 39 м²
    • 1-ком
    • 3/9 эт.
    650 000 Р
    Агент
    +7 (910) Показать номер
    Посмотреть контакты
    1-к кв. Костромская область, Нерехтский район, Волжское с/пос, д. ... - Фото 1
    1-к кв. Костромская область, Нерехтский район, Волжское с/пос, д. ... - Фото 2
    1-комнатная квартира, общая площадь 33м², жилая 18м², кухня 8м²

    ВОЗМОЖНА РАССРОЧКАВ продаже 1 комнатная квартира в д. Татарское.что в 35 км от Костромы.Квартира угловая, без перепланировок, долгов и обременений. Ремонт косметический, просторная кухня 8 кв.м., окно на кухне ПВХ, балконный блок деревянный, балкон остеклён,...
    • 33 м²
    • 1-ком
    • 2/2 эт.
    • панельный
    650 000 Р
    Агент
    +7 (910) Показать номер
    Посмотреть контакты
    1-к кв. Костромская область, Сусанинский район, Ченцовское с/пос, д. ... - Фото 1
    1-к кв. Костромская область, Сусанинский район, Ченцовское с/пос, д. ... - Фото 2
    1-комнатная квартира, общая площадь 34м², жилая 18м², кухня 9м²

    ВОЗМОЖНА РАССРОЧКАВНИМАНИЕ В ПРОДАЖЕ ПРЕКРАСНАЯ ОДНОКОМНАТНАЯ КВАРТИРА В П. ЧЕНЦОВО.Количество комнат: 1Общая площадь: 34.8 мПлощадь кухни: 9 мЖилая площадь: 18 мЭтаж: 1 из 2Балкон или лоджия: балконДополнительно: гардеробнаяВысота потолков: 2.5 мСанузел:...
    • 34 м²
    • 1-ком
    • 1/2 эт.
    • панельный
    650 000 Р
    Агент
    +7 (910) Показать номер
    Посмотреть контакты
    3-к кв. Коми, Ухта муниципальный округ, Водный пгт ул. Гагарина, 11 ... - Фото 1
    3-к кв. Коми, Ухта муниципальный округ, Водный пгт ул. Гагарина, 11 ... - Фото 2
    3-комнатная квартира, общая площадь 50м², кухня 8м²

    Предлагаем вашему вниманию трехкомнатную квартиру по привлекательной цене, которая станет идеальным полотном для воплощения ваших дизайнерских идей после качественного ремонта. Это прекрасная возможность создать жилье вашей мечты, учитывая личные предпочтения...
    • 50 м²
    • 3-ком
    • 5/5 эт.
    • кирпичный
    650 000 Р
    Агент
    +7 (912) Показать номер
    Посмотреть контакты

    Не нашли подходящего объявления?

    Оставьте заявку, и наши риэлторы подберут квартиру в районе Кренево

    (0)