Реализация объекта недвижимости приостановлена

Информация о коттедже

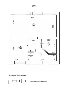
130.0 м2
Площадь
2
Этажность
13.0 cоток
Участок

Дополнительная информация

Дом продаётся вместе с участком
есть
Развернуть

Дом в Костромская область, Кострома ул. Мачтовая (130 м)

Продам готовый дом на участке 13,8 сот в развитом котеджном поселке Костромы (идет активная застройка).1 этаж - кухня-гостиная с панорамным остеклением и выходом на участок, комната, прихожая, сан.узел.2 этаж - три спальни (либо одна из них гардеробная), сан.узел.Дом подключен к газоснабжению и наружным сетям Стены оштукатурены, на 1м этаже смонтирован теплый пол 130м из газосиликатного блока 400 мм., с облицовкой из керамического кирпича. Толщина стены 51 см. Железобетонный монолитный фундамент толщиной 40см(песчаная подушка+щебень+гидроизоляция+каркасная сетка с ячейкой 200мм200мм из рифленой арматуры D12мм+бетон марки М350).Кровля из металлочерепицы утепленная, каменной ватой толщиной 200мм, подшив Софитами с перфорацией и водосточная система ПВХ марки Docke.Окна VEKA, профиль 70 мм..Перекрытия второго этажа ж/б плиты 220 мм., под плитами утепленный ж/б армопояс связан по всему периметру дома. Участок большой, сухой, расположен в высоком месте.Показ в любое время. id:1263. - Безопасность- - - Личный ипотечный брокер выберет для Вас оптимальную программу ипотеки. - Прозрачность. Фиксированное агентское вознаграждение. Оплата только после совершения сделки.- Комфорт. Весь комплекс услуг купли/продажи. Формат одного окна в одном офисе в центре города- Сделка с недвижимостью - работа профессионалов. Вместе создаем наследие.

Читать полностью

    Реализация объекта недвижимости приостановлена

    Не нашли подходящего объявления?

    Оставьте заявку, и наши риэлторы подберут купить дом в районе Костромы

    (0)