9 774 000 Р 120 700 $ или 104 700

Информация о квартире

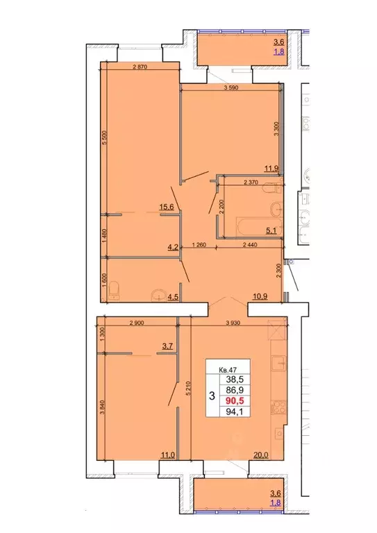
90 м2
Площадь
38 м2
Жилая
20 м2
Кухня
3
Комнаты
2
Этаж
9
Этажность

Дополнительная информация

Тип дома
кирпичный
Развернуть
Агент
+7 (994) 027-89-78
Начать чат с агентом

3-к кв. Костромская область, Кострома Кинешемское ш., 88 (90.5 м)

Продаётся 3-комнатная квартира в строящемся доме (Дом 8), срок сдачи: II-кв. 2026, общей площадью 90.5 кв.м., на 2 этаже. Ближайшая к ЖК крупная автомагистраль - Кинешемское шоссе, ул. Профсоюзная. Дома будут выполнены из качественных материалов керамического кирпича с автономным отоплением в насыщенных и приглушенных цветах. Комплекс будет состоять из двенадцати 9-ти этажных домов класса комфорт плюс. В домах ЖК есть однокомнатные, двухкомнатные и трёхкомнатные квартиры с разнообразными планировками. Помещения сдаются в черновой отделке, с остеклёнными лоджиями, всеми необходимыми коммуникациями, радиаторами отопления. Высота потолков составляет 2,7 метра. В каждом подъезде современные грузопассажирские лифты, колясочные, отделка с авторским дизайном.Для автомобилей предусмотрен придомовой паркинг. На территории комплекса, которая облагорожена и озеленена расположен новый крупный детский сад, новая школа, площадки для игр малышей и занятий спортом, построена детская поликлиника. В пешей доступности от ЖК имеются школы и детские сады, медицинские учреждения, торговые центры, сетевые супермаркеты, небольшие специализированные магазины, аптеки, банковские отделения, сервисные службы, салоны красоты. Для прогулок и отдыха жителей недалеко от ЖК расположен обновленный Парк Победы. Жилой комплекс Лесной квартал - это благоприятный микроклимат, качественное и эргономично спланированное современное жильё, транспортная доступность и близость инфраструктурных объектов.,

Читать полностью
    Позвонить Написать
    9 774 000 Р120 700 $ или 104 700
    Агент
    +7 (994) 027-89-78
    Начать чат с агентом
    Похожие предложения в Костроме
    3-к кв. Костромская область, Кострома Кинешемское ш., 88 (90.5 м) - Фото 1
    3-к кв. Костромская область, Кострома Кинешемское ш., 88 (90.5 м) - Фото 2
    3-комнатная квартира, общая площадь 90м², жилая 38м², кухня 20м²

    Продаётся 3-комнатная квартира в строящемся доме (Дом 8), срок сдачи: II-кв. 2026, общей площадью 90.5 кв.м., на 6 этаже. Ближайшая к ЖК крупная автомагистраль - Кинешемское шоссе, ул. Профсоюзная. Дома будут выполнены из качественных материалов керамического...
    • 90 м²
    • 3-ком
    • 6/9 эт.
    • кирпичный
    9 864 500 Р
    Агент
    +7 (994) Показать номер
    Посмотреть контакты
    3-к кв. Костромская область, Кострома Кинешемское ш., 88 (90.5 м) - Фото 1
    3-к кв. Костромская область, Кострома Кинешемское ш., 88 (90.5 м) - Фото 2
    3-комнатная квартира, общая площадь 90м², жилая 38м², кухня 20м²

    Продаётся 3-комнатная квартира в строящемся доме (Дом 8), срок сдачи: II-кв. 2026, общей площадью 90.5 кв.м., на 5 этаже. Ближайшая к ЖК крупная автомагистраль - Кинешемское шоссе, ул. Профсоюзная. Дома будут выполнены из качественных материалов керамического...
    • 90 м²
    • 3-ком
    • 5/9 эт.
    • кирпичный
    9 864 500 Р
    Агент
    +7 (994) Показать номер
    Посмотреть контакты
    3-к кв. Костромская область, Кострома Кинешемское ш., 88 (91.3 м) - Фото 1
    3-к кв. Костромская область, Кострома Кинешемское ш., 88 (91.3 м) - Фото 2
    3-комнатная квартира, общая площадь 91м², жилая 38м², кухня 20м²

    Продаётся 3-комнатная квартира в строящемся доме (Дом 8), срок сдачи: II-кв. 2026, общей площадью 91.3 кв.м., на 9 этаже. Ближайшая к ЖК крупная автомагистраль - Кинешемское шоссе, ул. Профсоюзная. Дома будут выполнены из качественных материалов керамического...
    • 91 м²
    • 3-ком
    • 9/9 эт.
    • кирпичный
    9 769 100 Р
    Агент
    +7 (994) Показать номер
    Посмотреть контакты
    3-к кв. Костромская область, Кострома Кинешемское ш., 88 (90.5 м) - Фото 1
    3-к кв. Костромская область, Кострома Кинешемское ш., 88 (90.5 м) - Фото 2
    3-комнатная квартира, общая площадь 90м², жилая 38м², кухня 20м²

    Продаётся 3-комнатная квартира в строящемся доме (Дом 8), срок сдачи: II-кв. 2026, общей площадью 90.5 кв.м., на 5 этаже. Ближайшая к ЖК крупная автомагистраль - Кинешемское шоссе, ул. Профсоюзная. Дома будут выполнены из качественных материалов керамического...
    • 90 м²
    • 3-ком
    • 5/9 эт.
    • кирпичный
    9 864 500 Р
    Агент
    +7 (994) Показать номер
    Посмотреть контакты
    3-к кв. Костромская область, Кострома Кинешемское ш., 88 (90.5 м) - Фото 1
    3-к кв. Костромская область, Кострома Кинешемское ш., 88 (90.5 м) - Фото 2
    3-комнатная квартира, общая площадь 90м², жилая 38м², кухня 20м²

    Продаётся 3-комнатная квартира в строящемся доме (Дом 8), срок сдачи: II-кв. 2026, общей площадью 90.5 кв.м., на 3 этаже. Ближайшая к ЖК крупная автомагистраль - Кинешемское шоссе, ул. Профсоюзная. Дома будут выполнены из качественных материалов керамического...
    • 90 м²
    • 3-ком
    • 3/9 эт.
    • кирпичный
    9 774 000 Р
    Агент
    +7 (994) Показать номер
    Посмотреть контакты

    Не нашли подходящего объявления?

    Оставьте заявку, и наши риэлторы подберут квартиру в новостройке в районе Костромы

    (0)