 
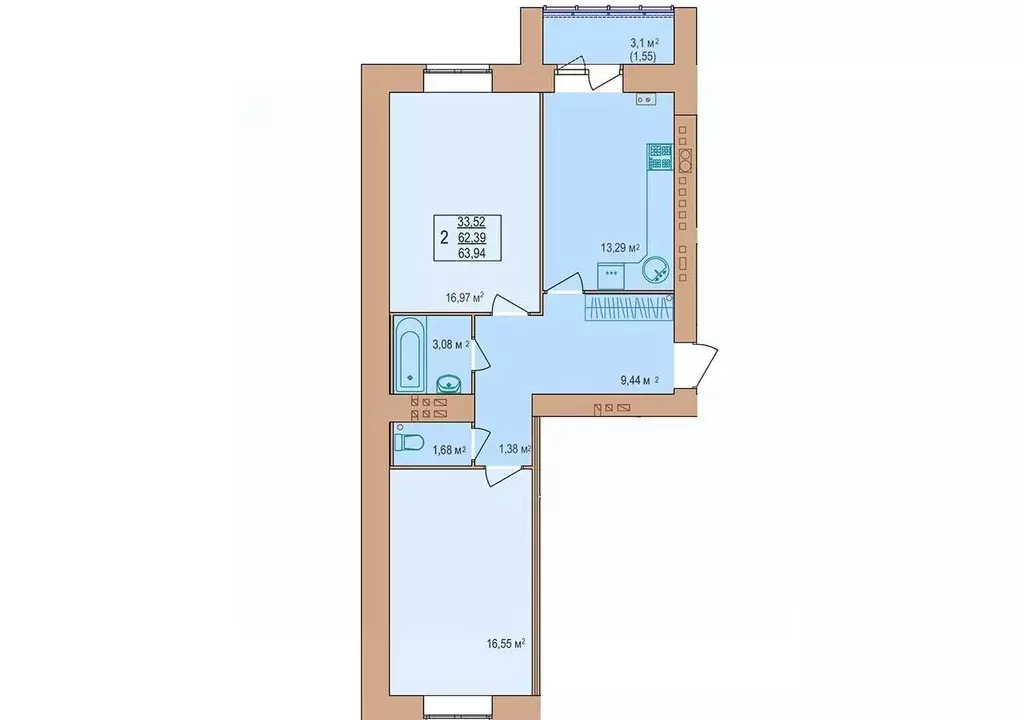
										Продаётся 2-комнатная квартира в строящемся доме (Дом 12), срок сдачи: IV-кв. 2025, общей площадью 59.23 кв.м., на 5 этаже. Жилой комплекс Гагарин от застройщика АвтоТехСтрой в городе Кострома на улице Привокзальная.
 
								 
											
                                                                         
											
                                                                         
											
                                                                         
											
                                                                         
											
                                                                        Оставьте заявку, и наши риэлторы подберут квартиру в новостройке в районе Костромы
