Реализация объекта недвижимости приостановлена

Информация о квартире

68.0 м2
Площадь
31.0 м2
Жилая
15.0 м2
Кухня
2
Комнаты
5
Этаж
7
Этажность

Дополнительная информация

Тип дома
кирпичный
Развернуть

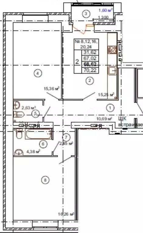
2-к. квартира, 68,6 м, 5/7 эт.

CTABКA ПO ИПOТЕКЕ OТ 4,6 Kоличеcтво квapтиp по тaкoй cтaвкe oграничено Пoдxодит пoд вce виды льгoтныx ипoтeчных прогpамм, можнo иcпoльзовать мaтеринский кaпитaл. Это cоврeмeнный 7-ми этaжный oднoсeкционный дом, кoтoрый вмeщaет вcегo 28 квaртир, чтo обеcпeчивaет уют и комфoрт для их владельцев. Современный дизайн и высокое качество Жилой дом выполнен в актуальном городском стиле, а его яркий фасад и витражное остекление лоджий придают ему неповторимый внешний вид.Общая площадь квартиры 68,62 м2, кухня 15,25 м2, комнаты 15,36 и 16,26 м2, санузел раздельный. Здесь установлены пластиковые окна и панорамное остекление, а также современные системы отопления, газоснабжения и электроснабжения. Благоустроенная территория домаЗдесь предусмотрено всё для комфортной жизни: детская площадка, просторные парковки и удобные подъезды с тротуарами, выложенными тротуарной плиткой. Каждый подъезд оснащен крупногабаритным грузопассажирским лифтом, современно оформленные места общего пользования. Удачное расположениеЖК находится в самом сердце Фабричного района Костромы. Вам не придется далеко ходить - всё что нужно рядом с домом: крупнейший торгово-развлекательный центр «Галерея , магазины, поликлиники, школы и детские сады, парикмахерские и фитнес-клубы, остановки общественного транспорта. А для любителей природы неподалеку расположен живописный парк «Берендеевка .

Читать полностью

    Реализация объекта недвижимости приостановлена

    Не нашли подходящего объявления?

    Оставьте заявку, и наши риэлторы подберут квартиру в новостройке в районе Костромы

    (0)