36 000 000 Р 428 600 $ или 370 000

Информация об помещении

1
Этаж

Состояние и оснащение

Количество этажей
2
Развернуть
Агент
+7 (994) 027-81-48
Начать чат с агентом

Помещение свободного назначения в Костромская область, Кострома ...

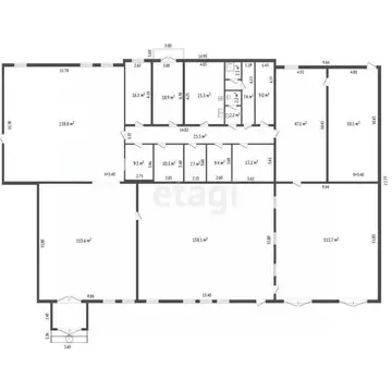
Продаются единым имущественным блоком (по отдельности - не продаются ): нежилые помещения общей площадью 498,17 кв.м., включая помещения площадью 428,6 кв.м. и 3/10 доли в праве собственности на помещения МОП, что соответствует 69,57 кв.м., с объектами движимого имущества, расположенные на доле площадью 408,6 кв.м земельного участка с кад. 44:27:040110:392 общей площадью 2 091 кв.м., по адресу: Костромская область, г. Кострома, ул. Советская, д 6. Помещения частично сдаются в аренду (380+ кв.м.) и могут рассматриваться как действующий арендный бизнес. * Помещения продаются в следующем составе: 1) Нежилое помещение 7 (номера 43,50,54,55,64,65,66,67,68,69,70,71,72,73,74,75 по плану 1-го этажа), назначение: нежилое, общая площадь 294,5 кв.м., этаж 01, кадастровый номер 44:27:040110:379, расположенное по адресу: Костромская обл., г. Кострома, ул. Советская, д. 6, пом. 7, (номера 43,50,54,55,64,65,66,67,68,69,70,71,72,73,74,75 по плану 1-го этажа). 2) Нежилое помещение 3 комнаты 23,58,59,60,61,62,63,76, назначение: нежилое, общая площадь 87,1 кв.м., этаж 01, кадастровый номер 44:27:040110:378, расположенное по адресу: Костромская обл., г. Кострома, ул. Советская, д. 6, пом. 3, нежилое помещение 3 комнаты 23,58,59,60,61,62,63,76. 3) Нежилое помещение 2 (ком. 78-81), назначение: нежилое, общая площадь 47,0 кв.м., подвал б/н, кадастровый номер 44:27:040110:231, расположенное по адресу: Костромская область, г Кострома, ул. Советская, д. 6, пом. 2, ком. 78-81. Высота потолков - 4,45 м. Инженерные коммуникации - электроснабжение, водоснабжение, канализация, отопление. Планировка - коридорно-кабинетная. + Места общего пользования: + 3/10 (три десятых) доли в праве собственности на Места общего пользования (комн. 7,32-35,38), назначение: нежилое, имущество общего пользования, общая площадь 27,0 кв.м., подвал б/н, кадастровый номер 44:27:040110:264, расположенные по адресу: Костромская область, г. Кострома, ул. Советская, д. 6, пом. 2. + 3/10 (три десятых) доли в праве собственности на Места общего пользования (комн. 1,2,4,5,11), назначение: нежилое, имущество общего пользования, общая площадь 84,8 кв.м., этаж 01, кадастровый номер 44:27:040110:202, расположенные по адресу: Костромская область, г. Кострома, ул. Советская, д. 6, пом. 3. + 3/10 (три десятых) доли в праве собственности на Места общего пользования (комн. 1,9,19), назначение: нежилое, имущество общего пользования, общая площадь 60,0 кв.м., этаж 02, кадастровый номер 44:27:040110:270, расположенные по адресу: Костромская область, г. Кострома, ул. Советская, д. 6, пом. 4. + 3/10 (три десятых) доли в праве собственности на Места общего пользования (комн. 1,6,29), назначение: нежилое, имущество общего пользования, общая площадь 60,1 кв.м., этаж 03, кадастровый номер 44:27:040110:213, расположенные по адресу: Костромская область, г. Кострома, ул. Советская, д. 6, пом. 5. Земельный участок - в аренде; вместе с нежилыми помещениями к Покупа

Читать полностью
    Позвонить Написать
    36 000 000 Р428 600 $ или 370 000
    Агент
    +7 (994) 027-81-48
    Начать чат с агентом
    Похожие предложения
    Помещение свободного назначения в Костромская область, Кострома ... - Фото 1
    Помещение свободного назначения в Костромская область, Кострома ... - Фото 2
    ВОЗМОЖНА РАССРОЧКАОтличный объект для инвестиций. Готовый бизнес в историческом центре Костромы.Суть предложения:Продается единый комплекс нежилых помещений общей площадью 498,2 м в здании объекте культурного наследия Дом связи (1934 г.). Включает...
    • 1/4 эт.
    36 000 000 Р
    Агент
    +7 (910) Показать номер
    Посмотреть контакты
    Помещение свободного назначения в Пензенская область, Сердобск ул. ... - Фото 1
    Помещение свободного назначения в Пензенская область, Сердобск ул. ... - Фото 2
    Арт.. Готовый Арендный Бизнес (ГАБ) в Сердобске Продажа Здания 484,8м2 с Федеральным Арендатором Скидкино Окупаемость 8 Лет Инвестируйте в Надежность: Приобретите Актив с Гарантированным ДоходомИщете стабильную и прогнозируемую инвестицию в коммерческую...
    • 1/1 эт.
    36 000 000 Р
    Агент
    +7 (987) Показать номер
    Посмотреть контакты
    Помещение свободного назначения в Пермский край, Пермь ул. Окулова, 14 ... - Фото 1
    Помещение свободного назначения в Пермский край, Пермь ул. Окулова, 14 ... - Фото 2
    Помещение под офиc 97 м2 с видом на Каму, на 8 этажe МФК Окулова 14 от UDS.Историческая часть Перми, на набережной Камы, рядом с садом им. Гоголя. Удобные пешеходные и подъездные пути, рядом остановка общественного транспорта, 5 минут на автомобиле до...
    • 8/12 эт.
    36 693 795 Р
    Агент
    +7 (912) Показать номер
    Посмотреть контакты
    Помещение свободного назначения в Саратовская область, Саратов ул. ... - Фото 1
    Помещение свободного назначения в Саратовская область, Саратов ул. ... - Фото 2
    id:9139. Продается здание и земельный участок расположенные рядом с домом по ул. Покровская, 4.Расположение: г. Саратов, Новосоколовогорский жилой район, уч. 103.Описаине:-площадь по документам 338,7 кв.м., общая с цоколем - 600 кв.м.-эл. мощность 50...
    • 1/1 эт.
    37 000 000 Р
    Агент
    +7 (917) Показать номер
    Посмотреть контакты
    Помещение свободного назначения в Свердловская область, Полевской ул. ... - Фото 1
    Помещение свободного назначения в Свердловская область, Полевской ул. ... - Фото 2
    Предлагается к продаже часть в обособленном трехэтажном строении с несколькими входными группами. В наличии подвальное помещение. Электрическая мощность составляет 100 кВт. Ранее первый этаж занимало банковское учреждение. Открытая планировка пространства....
    • 3/3 эт.
    37 000 000 Р
    Агент
    +7 (912) Показать номер
    Посмотреть контакты

    Не нашли подходящего объявления?

    Оставьте заявку, и наши риэлторы подберут псн в районе Костромы

    (0)