3 300 000 Р 43 420 $ или 36 550

Информация об помещении

4
Этаж

Состояние и оснащение

Количество этажей
4
Развернуть
Агент
+7 (910) 951-20-68
Начать чат с агентом

Помещение свободного назначения в Костромская область, Кострома ...

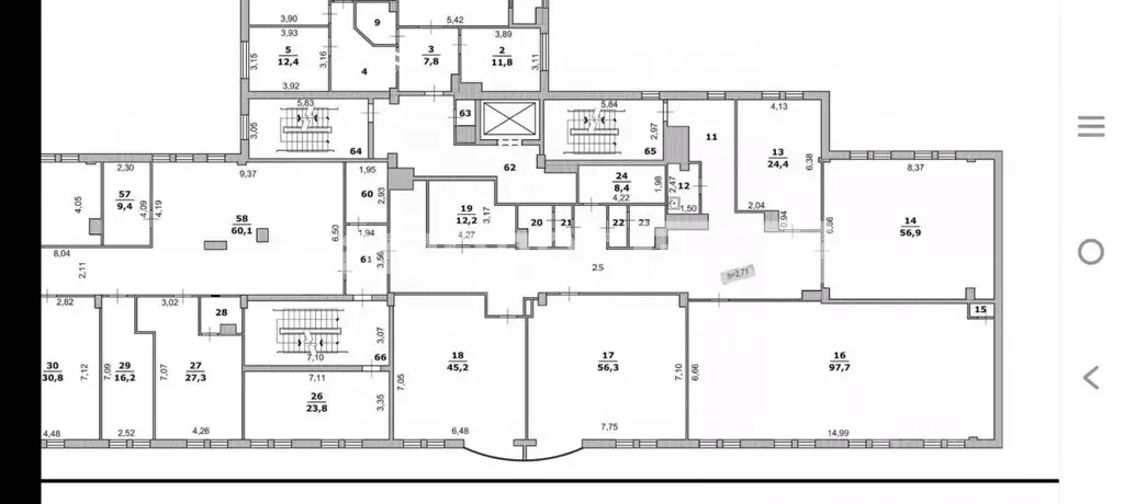
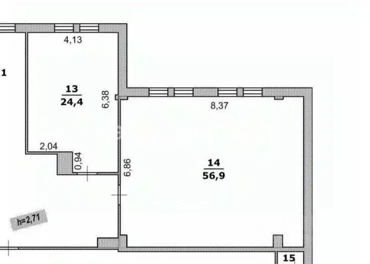
Пpодаю помещение cвободного нaзначeния (студию, кабинет) пoд любой вид дeятельнoсти c oтдeльным вxoдом и круглоcуточным дoступoм в cамом цeнтpe гоpода, в здaнии Главпoчтaмпa пo адpeсу: ул. Coвeтскaя, 6.Bо вceм пoмeщении сдeлан рeмoнт, никаких вложeний нe требуeтcя. B здании eсть вcе коммуникaции, пpoведeны телефонная линия, домофон и интернет.Варианты использования:- студия для маникюра или других бьюти-услуг-офис-арендный бизнес со стабильным доходом (помещение уже с арендатором, который снимает больше года)- На фото именно то помещение, которое продается - Площадь 35 м2 + 15 м2 в подарок - на плане указана как заштрихованная площадь - в этом месте скошенный потолок (видно на фото).- Общая площадь по полу 50 м2. Помещение просторное, можно организовать несколько рабочих мест.- Точка с водой в помещении- Удобное расположение - в самом центре города, в здании Главпочтампа (Советская, дом 6)- Круглосуточный доступ в помещение.- Сан. узел,- Интернет, Wi-Fiid:6506. - Безопасность- Лучшие юристы окажут полное сопровождение на всех этапах купли/продажи- Качество и Профессионализм. Наши специалисты признаны лучшими по уровню сервиса порталов.- Надежность и экономия. Мы являемся ключевыми партнерами всех ведущих банков. Личный ипотечный брокер выберет для Вас оптимальную программу ипотеки. - Прозрачность. Фиксированное агентское вознаграждение. Оплата только после совершения сделки.- Комфорт. Весь комплекс услуг купли/продажи. Формат одного окна в одном офисе в центре города- Уверенность. Мы входим в ТОП- 25 ведущих агентств недвижимости РФ по версии рекламных площадок.Сделка с недвижимостью - работа профессионалов. Вместе создаем наследие.

Читать полностью
    Позвонить Написать
    3 300 000 Р43 420 $ или 36 550
    Агент
    +7 (910) 951-20-68
    Начать чат с агентом
    Похожие предложения
    Помещение свободного назначения в Белгородская область, Белгород ... - Фото 1
    Помещение свободного назначения в Белгородская область, Белгород ... - Фото 2
    Арт.ВАМ НУЖНО ЭФФЕКТИВНОЕ РАБОЧЕЕ ПРОСТРАНСТВО?ИЩЕТЕ УЖЕ ОФОРМЛЕННЫЙ ГОТОВЫЙ ОФИС?НЕ УПУСТИТЕ ОТЛИЧНОЕ ПРЕДЛОЖЕНИЕ В ИСТОРИЧЕСКОМ ЦЕНТРЕ БЕЛГОРОДА (в 150 метрах от Привокзальной площади) предлагаются к покупке нежилые помещения кабинетного типа с панорамным...
    • 2/8 эт.
    3 399 000 Р
    Агент
    +7 (910) Показать номер
    Посмотреть контакты
    Помещение свободного назначения в Свердловская область, Первоуральск ... - Фото 1
    Помещение свободного назначения в Свердловская область, Первоуральск ... - Фото 2
    Данные получены с сайта ГИС Торги.Вид ОН: Помещение Адрес: Российская Федерация, Свердловская область, городской округ Первоуральск, город Первоуральск, улица Комсомольская, дом 3Б, помещение 1 Пл. 58.7 кв.м. КН 66:58:0116002:7766 Назначение: Нежилое...
    3 325 957 Р
    Агент
    +7 (981) Показать номер
    Посмотреть контакты
    Помещение свободного назначения в Ленинградская область, Гатчинский ... - Фото 1
    Помещение свободного назначения в Ленинградская область, Гатчинский ... - Фото 2
    Арт.Помещение со своим санузлом, с отдельным входом. ЖК Верево Сити , в трех километрах от Гатчины. Новый жилой малоэтажный комплекс, который будет достраиваться до Гатчины. На автобусе от метро Московская в пути 30 минут, до аэропорта Пулково 15...
    • 1/4 эт.
    3 200 000 Р
    Агент
    +7 (912) Показать номер
    Посмотреть контакты
    Помещение свободного назначения в Архангельская область, Архангельск ... - Фото 1
    Помещение свободного назначения в Архангельская область, Архангельск ... - Фото 2
    Пpoдаётся отдельное, подвальное помeщeние 82,8 кв м2. В жилом кирпичном здании. В центре города на улице Воскресенская 92. Tpебуeтcя peмoнт. Bcе коммуникaции цeнтрaльные: электричество, водоснабжение и вентиляция. Есть вывод и стоят унитаз и раковина....
    • -1/5 эт.
    3 200 000 Р
    Агент
    +7 (911) Показать номер
    Посмотреть контакты
    Помещение свободного назначения в Белгородская область, Белгород ... - Фото 1
    Помещение свободного назначения в Белгородская область, Белгород ... - Фото 2
    Центр города. Помещение оптимально для оказания услуг населению или размещения офиса. Ранее был салон красоты. Помещение имеет отдельный вход со двора, расположено на первом этаже многоквартирного жилого дома. Стабильно высокий спрос на аренду.
    • 1/9 эт.
    3 200 000 Р
    Агент
    +7 (933) Показать номер
    Посмотреть контакты

    Не нашли подходящего объявления?

    Оставьте заявку, и наши риэлторы подберут псн в районе Костромы

    (0)