142 000 000 Р 1 690 500 $ или 1 459 600

Информация об помещении

1
Этаж

Состояние и оснащение

Количество этажей
6
Развернуть
Агент
+7 (910) 920-70-67
Начать чат с агентом

Помещение свободного назначения в Костромская область, Кострома ул. ...

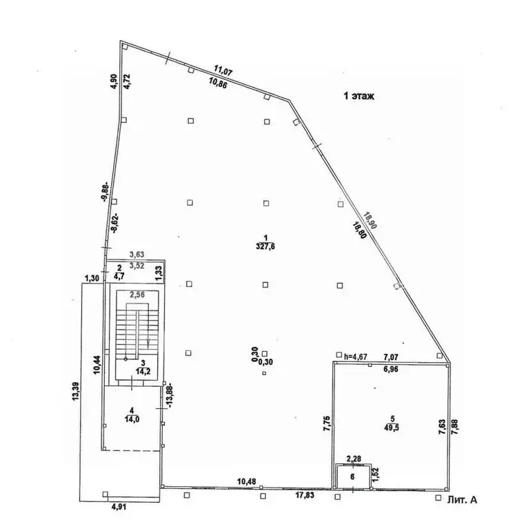
ВОЗМОЖНА РАССРОЧКАПродается 6 этажное административное здание расположенное на бывшей фабрике БКЛМ .Общая площадь здания 7103,9 кв.м.Состояние инженерных систем - удовлетворительное, состояние перекрытий и стен - идеальное.Высота потолков в помещениях в зависимости от этажа от 3,3 до 4,5 м.Заведенная электрическая мощность - под будущего собственника здания. Мощности БКЛМ позволяют покрыть все желания.Канализация - центральная.Отопление - центральное от ТЭЦ - 1.Водоснабжение - центральное.На территории предприятия есть газовая магистраль. Возможно подключение здания к системе газоснабжения, но в перспективе.Планировка - смешанная. Перегородки между кабинетами - не несущие, расстояние между несущими стенами внутри здания - 2,65 м.К зданию относится земельный участок и парковка.Есть возможность организации отдельного заезда с Красинского проезда.Из окон здания открывается потрясающий вид на Ипатьевский монастырь, слияние рек Костромка и Волга.Отлично подойдет под организацию офисно-арендного, гостиничного бизнеса.. Дополнительно оплачивается комиссия с покупателя. Код пользователя: 95033Номер в базе:

Читать полностью
    Позвонить Написать
    142 000 000 Р1 690 500 $ или 1 459 600
    Агент
    +7 (910) 920-70-67
    Начать чат с агентом
    Похожие предложения
    Помещение свободного назначения в Московская область, Истра ... - Фото 1
    Помещение свободного назначения в Московская область, Истра ... - Фото 2
    642904. Предлагаем отдельно стоящее двухэтажное здание с сетевыми надежными арендаторами Дикси , Красное и Белое и Постамат OZON, площадью 698,3 кв. м., расположенное в г. Истра. Без комиссии для покупателя.Преимущества объекта:-первая линия;-25 минут...
    • 1/2 эт.
    130 000 000 Р
    Агент
    +7 (938) Показать номер
    Посмотреть контакты
    Помещение свободного назначения в Московская область, Химки городской ... - Фото 1
    Помещение свободного назначения в Московская область, Химки городской ... - Фото 2
    714091. Предлагаем новое отдельно стоящее двухэтажное здание с сетевым арендатором Дикси , площадью 942.5 кв. м., расположенное в г. Химки. Без комиссии для покупателя.Преимущества объекта:-первая линия домов, вечерняя сторона;-25 минут пешком от станций...
    • 1/2 эт.
    135 000 000 Р
    Агент
    +7 (938) Показать номер
    Посмотреть контакты
    Помещение свободного назначения в Московская область, Наро-Фоминский ... - Фото 1
    Помещение свободного назначения в Московская область, Наро-Фоминский ... - Фото 2
    711768. Предлагаем отдельно стоящее здание с арендаторами Дикси | Фикс прайс | Салон красоты | Салоны связи | Цветочный магазин | Дом быта | Одежда | Шаурма | Торговые компании, площадью 1 150 кв. м., расположенное в рп. Селятино. 1, 2, 3 этаж....
    • 1/3 эт.
    150 000 000 Р
    Агент
    +7 (938) Показать номер
    Посмотреть контакты
    Помещение свободного назначения в Удмуртия, Ижевск ул. Новоажимова, ... - Фото 1
    Помещение свободного назначения в Удмуртия, Ижевск ул. Новоажимова, ... - Фото 2
    Характеристики:- Теплый склад- Доступ 24/7- ХВС/Бойлер- Индивидуальное отопление- Высота потолков 9 м- Высота ворот 4.5 м- Напольное покрытие - Антипыль- Максимальная мощность 150 кВт- Подъездные пути под грузовой транспорт, легковой транспорт- Дополнительные...
    • 1/1 эт.
    140 000 000 Р
    Агент
    +7 (982) Показать номер
    Посмотреть контакты
    Помещение свободного назначения в Ростовская область, Ростов-на-Дону ... - Фото 1
    Помещение свободного назначения в Ростовская область, Ростов-на-Дону ... - Фото 2
    Каталожный номер — B067475НЕ ФЕЙКПредлагаем в покупку многофункциональное здание.Возможные направления: торговля, представительство компании, общепит, производственная и складская деятельность.Характеристики и преимущества здания:- отдельностоящее 2х...
    • 1/3 эт.
    130 000 000 Р
    Агент
    +7 (988) Показать номер
    Посмотреть контакты

    Не нашли подходящего объявления?

    Оставьте заявку, и наши риэлторы подберут псн в районе Костромы

    (0)