17 000 000 Р 210 200 $ или 182 000

Информация об помещении

1
Этаж

Состояние и оснащение

Количество этажей
1
Развернуть
Агент
+7 (984) 239-47-59
Начать чат с агентом

Торговая площадь в Костромская область, Кострома Индустриальная ул., ...

АРЕНДНЫЙ БИЗНЕС - ДАВЫДОВСКИЙ - ТОРГОВЫЕ ПЛОЩАДИ СКЛАДЫПродажа коммерческой недвижимости по адресу: Индустриальная 2АОбщая площадь объекта составляет 444,7квадратных метров, что позволяет разместить площади для розничной торговли, где большое количество товаров и оборудования. В настоящее время готовый арендный бизнес.. В складском помещении установлен тельфер, что позволяет с заднего входа принимать грузы. Просторные помещения, высокие потолки и удобная планировка создают оптимальные условия для эффективной работы. Есть кабинеты, которые ни кем не заняты и помещение для мастерской по изготовлению ключей со станками. Входы есть с лицевой стороны здания и вход со двора. Помещения более информативны при просмотре. Не упустите возможность приобрести надёжное и удобное пространство для вашего бизнеса id:27244. - Безопасность- Лучшие юристы окажут полное сопровождение на всех этапах купли/продажи- Качество и Профессионализм. Наши специалисты признаны лучшими по уровню сервиса порталов.- Надежность и экономия. Мы являемся ключевыми партнерами всех ведущих банков. Личный ипотечный брокер выберет для Вас оптимальную программу ипотеки. - Прозрачность. Фиксированное агентское вознаграждение. Оплата только после совершения сделки.- Комфорт. Весь комплекс услуг купли/продажи. Формат одного окна в одном офисе в центре города- Уверенность. Мы входим в ТОП- 25 ведущих агентств недвижимости РФ по версии рекламных площадок.Сделка с недвижимостью - работа профессионалов. Вместе создаем наследие.

Читать полностью
    Позвонить Написать
    17 000 000 Р210 200 $ или 182 000
    Агент
    +7 (984) 239-47-59
    Начать чат с агентом
    Похожие предложения
    Продажа торгового помещения, Ленинградское ш. - Фото 1
    Продажа торгового помещения, Ленинградское ш. - Фото 2
    Продажа торгового помещения, Ленинградское ш. - Фото 3
    Продажа торгового помещения, Ленинградское ш. - Фото 4
    Продажа торгового помещения, Ленинградское ш. - Фото 5
    Продажа торгового помещения, Ленинградское ш. - Фото 6
    Продажа торгового помещения, Ленинградское ш. - Фото 7
    Продажа торгового помещения, Ленинградское ш. - Фото 8
    Продажа торгового помещения, Ленинградское ш. - Фото 9
    Продажа торгового помещения, Ленинградское ш. - Фото 10
    Продажа торгового помещения, Ленинградское ш. - Фото 11
    Продажа торгового помещения, Ленинградское ш. - Фото 12
    Продажа торгового помещения, Ленинградское ш. - Фото 13
    Продажа торгового помещения, Ленинградское ш. - Фото 14
    Продажа торгового помещения, Ленинградское ш. - Фото 15
    Продажа торгового помещения, Ленинградское ш. - Фото 16
    Продажа торгового помещения, Ленинградское ш. - Фото 17
    общая площадь 52.8м², реализуемая площадь 52.8м²

    Лот 156742. Предлагается в продажу торговое помещение в монолитном 15и этажном жилом доме, расположенном по адресу: Москва, Ленинградское шоссе, 228к6 (ЖК "1-й Ленинградский", корпус №3) Район Молжаниново относится к Северному округу столицы и расположен...
    • 52.8 м²
    • 1/15 эт.
    17 046 000 Р
    Агентство
    S5Development
    +7 (903) Показать номер
    Посмотреть контакты
    Продажа торгового помещения, Ленинградское ш. - Фото 1
    Продажа торгового помещения, Ленинградское ш. - Фото 2
    Продажа торгового помещения, Ленинградское ш. - Фото 3
    Продажа торгового помещения, Ленинградское ш. - Фото 4
    Продажа торгового помещения, Ленинградское ш. - Фото 5
    Продажа торгового помещения, Ленинградское ш. - Фото 6
    Продажа торгового помещения, Ленинградское ш. - Фото 7
    Продажа торгового помещения, Ленинградское ш. - Фото 8
    Продажа торгового помещения, Ленинградское ш. - Фото 9
    Продажа торгового помещения, Ленинградское ш. - Фото 10
    Продажа торгового помещения, Ленинградское ш. - Фото 11
    Продажа торгового помещения, Ленинградское ш. - Фото 12
    Продажа торгового помещения, Ленинградское ш. - Фото 13
    Продажа торгового помещения, Ленинградское ш. - Фото 14
    Продажа торгового помещения, Ленинградское ш. - Фото 15
    Продажа торгового помещения, Ленинградское ш. - Фото 16
    Продажа торгового помещения, Ленинградское ш. - Фото 17
    общая площадь 61.9м², реализуемая площадь 61.9м²

    Лот 156743. Предлагается в продажу торговое помещение в монолитном 15и этажном жилом доме, расположенном по адресу: Москва, Ленинградское шоссе, 228к7 (ЖК "1-й Ленинградский", корпус №4) Район Молжаниново относится к Северному округу столицы и расположен...
    • 61.9 м²
    • 1/15 эт.
    17 882 554 Р
    Агентство
    S5Development
    +7 (903) Показать номер
    Посмотреть контакты
    Продажа торгового помещения, Ленинградское ш. - Фото 1
    Продажа торгового помещения, Ленинградское ш. - Фото 2
    Продажа торгового помещения, Ленинградское ш. - Фото 3
    Продажа торгового помещения, Ленинградское ш. - Фото 4
    Продажа торгового помещения, Ленинградское ш. - Фото 5
    Продажа торгового помещения, Ленинградское ш. - Фото 6
    Продажа торгового помещения, Ленинградское ш. - Фото 7
    Продажа торгового помещения, Ленинградское ш. - Фото 8
    Продажа торгового помещения, Ленинградское ш. - Фото 9
    Продажа торгового помещения, Ленинградское ш. - Фото 10
    Продажа торгового помещения, Ленинградское ш. - Фото 11
    Продажа торгового помещения, Ленинградское ш. - Фото 12
    Продажа торгового помещения, Ленинградское ш. - Фото 13
    Продажа торгового помещения, Ленинградское ш. - Фото 14
    Продажа торгового помещения, Ленинградское ш. - Фото 15
    Продажа торгового помещения, Ленинградское ш. - Фото 16
    Продажа торгового помещения, Ленинградское ш. - Фото 17
    общая площадь 58.6м², реализуемая площадь 58.6м²

    Лот 156111. Предлагается в продажу торговое помещение в монолитном 15и этажном жилом доме, расположенном по адресу: Москва, Ленинградское шоссе, 228к6 (ЖК "1-й Ленинградский", корпус №3) Район Молжаниново относится к Северному округу столицы и расположен...
    • 58.6 м²
    • 1/15 эт.
    16 994 000 Р
    Агентство
    S5Development
    +7 (903) Показать номер
    Посмотреть контакты
    Продажа торгового помещения, м. Университет, Ленинский пр-кт. - Фото 1
    Продажа торгового помещения, м. Университет, Ленинский пр-кт. - Фото 2
    Продажа торгового помещения, м. Университет, Ленинский пр-кт. - Фото 3
    Продажа торгового помещения, м. Университет, Ленинский пр-кт. - Фото 4
    Продажа торгового помещения, м. Университет, Ленинский пр-кт. - Фото 5
    Продажа торгового помещения, м. Университет, Ленинский пр-кт. - Фото 6
    Продажа торгового помещения, м. Университет, Ленинский пр-кт. - Фото 7
    Продажа торгового помещения, м. Университет, Ленинский пр-кт. - Фото 8
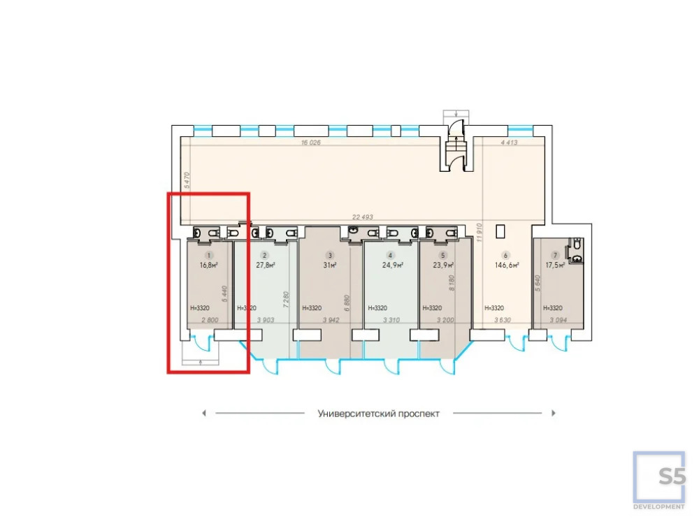
    общая площадь 16.8м², реализуемая площадь 16.8м²

    Лот 155486. Продажа торгового помещения в ЮЗАО. Ленинский проспект, 62.Находится на первой линии одного из крупнейших торговых коридоров Москвы. В непосредственной близости расположены высшие учебные заведения и крупные бизнес-центры, формирующие устойчивый...
    • 16.8 м²
    • 1/8 эт.
    17 500 000 Р
    Агентство
    S5Development
    +7 (903) Показать номер
    Посмотреть контакты
    Продажа торгового помещения, м. Медведково, посёлок Нагорное - Фото 1
    Продажа торгового помещения, м. Медведково, посёлок Нагорное - Фото 2
    Продажа торгового помещения, м. Медведково, посёлок Нагорное - Фото 3
    Продажа торгового помещения, м. Медведково, посёлок Нагорное - Фото 4
    Продажа торгового помещения, м. Медведково, посёлок Нагорное - Фото 5
    Продажа торгового помещения, м. Медведково, посёлок Нагорное - Фото 6
    Продажа торгового помещения, м. Медведково, посёлок Нагорное - Фото 7
    Продажа торгового помещения, м. Медведково, посёлок Нагорное - Фото 8
    Продажа торгового помещения, м. Медведково, посёлок Нагорное - Фото 9
    Продажа торгового помещения, м. Медведково, посёлок Нагорное - Фото 10
    Продажа торгового помещения, м. Медведково, посёлок Нагорное - Фото 11
    Продажа торгового помещения, м. Медведково, посёлок Нагорное - Фото 12
    общая площадь 80.5м², реализуемая площадь 80.5м²

    Лот 154414. Продажа помещения свободного назначения на 1-м этаже жилого дома, по адресу: Московская область, Мытищи городской округ, Нагорное поселок, ЖК комфорт + класса Датский квартал, ул. Полковника Романова, 13. Комплекс находится на северо-востоке...
    • 80.5 м²
    • 1/9 эт.
    16 945 605 Р
    Агентство
    S5Development
    +7 (903) Показать номер
    Посмотреть контакты

    Не нашли подходящего объявления?

    Оставьте заявку, и наши риэлторы подберут торговое помещение в районе Костромы

    (0)