1 750 000 Р 21 550 $ или 18 710

Информация о квартире

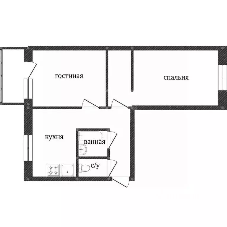
49 м2
Площадь
32 м2
Жилая
9 м2
Кухня
2
Комнаты
2
Этаж
2
Этажность

Дополнительная информация

Тип дома
кирпичный
Развернуть
Агент
+7 (910) 370-39-59
Начать чат с агентом

2-к кв. Костромская область, Костромской район, Самсоновское с/пос, ...

2 комнатная квартира улучшенной планировки Сделан капитальный ремонт с использованием качественных материалов Дом кирпичный, 1982 года постройки, перекрытия железобетонные Общая площадь квартиры 49 кв. м., окна на разные стороны дома.В квартире электропроводка вся заменена, все трубы в квартире заменены на новые, были демонтированы полы, что позволяет вам сразу заехать и наслаждаться жизнью.В квартире остается кухонный гарнитур, плита, вытяжка, посудомоечная машина - все для вашего удобства.Есть дополнительное место для хранения вещей - гардеробная.Большая лоджия, выход из кухни и комнаты.Обременений и долгов нет.Быстрый выход на сделку.Транспортная доступность: до поселка регулярно ходит общественный транспорт, 20 минут на машине от мкр. Паново.Квартира расположена в уникальном месте, где сливаются три реки - Кубань, Качалка и Волга. Это идеальное место для тех, кто ценит природу и спокойствие Рядом находятся п. Трифоныч, д. Сельцо, д. Качалка, п. Сухоногово, с. Ильинское. п. Тихий Уголок Санаторий Волга р. Волга id:57300. - Безопасность- Лучшие юристы окажут полное сопровождение на всех этапах купли/продажи- Качество и Профессионализм. Наши специалисты признаны лучшими по уровню сервиса порталов.- Надежность и экономия. Мы являемся ключевыми партнерами всех ведущих банков. Личный ипотечный брокер выберет для Вас оптимальную программу ипотеки. - Прозрачность. Фиксированное агентское вознаграждение. Оплата только после совершения сделки.- Комфорт. Весь комплекс услуг купли/продажи. Формат одного окна в одном офисе в центре города- Уверенность. Мы входим в ТОП- 25 ведущих агентств недвижимости РФ по версии рекламных площадок.Сделка с недвижимостью - работа профессионалов. Вместе создаем наследие.

Читать полностью

    Для того, чтобы купить двухкомнатную квартиру по адресу: Тихий Уголок, позвоните по телефону +7 (910) 370-39-59. Торопитесь! Объявление №30090318564 о продаже двухкомнатной квартиры опубликовано 2 дня назад.

    Позвонить Написать
    1 750 000 Р21 550 $ или 18 710
    Агент
    +7 (910) 370-39-59
    Начать чат с агентом
    Похожие предложения
    2-к кв. Костромская область, Костромской район, Самсоновское с/пос, ... - Фото 1
    2-к кв. Костромская область, Костромской район, Самсоновское с/пос, ... - Фото 2
    2-комнатная квартира, общая площадь 46м², жилая 30м², кухня 9м²

    ВОЗМОЖНА РАССРОЧКАПродается великолепная 2-комнатная квартира в живописном поселке Тихий уголок Эта уютная и светлая квартира площадью 46,9 кв.м. расположена на втором этаже двухэтажного дома и готова стать вашим идеальным домом.А также имеется красивая...
    • 46 м²
    • 2-ком
    • 2/2 эт.
    1 890 000 Р
    Агент
    +7 (994) Показать номер
    Посмотреть контакты
    1-к кв. Костромская область, Кострома ул. Крупской, 17 (31.0 м) - Фото 1
    1-к кв. Костромская область, Кострома ул. Крупской, 17 (31.0 м) - Фото 2
    1-комнатная квартира, общая площадь 31м², жилая 18м², кухня 5м²

    Квартира на ул. Крупской, 31 кв м 7й этаж 9ти этажного кирпичного домаВ доме 2 лифта грузовой и пассажирскийДомофон на входе, своя территория, много парковачных мест.Рядом парк для прогулок, школы 31 и 19, детский сад 10, сетевые магазины, остановка...
    • 31 м²
    • 1-ком
    • 7/9 эт.
    • кирпичный
    1 900 000 Р
    Агент
    +7 (915) Показать номер
    Посмотреть контакты
    общая площадь 33м²

    Данные в объявлении обновляются раз в сутки. Подробные параметры объекта, актуальные данные и НДС посмотрите на сайте электронных торгов.
    • 33 м²
    • 5/6 эт.
    1 878 160 Р
    Агент
    +7 (910) Показать номер
    Посмотреть контакты
    1-к кв. Костромская область, Кострома ул. Ерохова, 34 (22.0 м) - Фото 1
    1-к кв. Костромская область, Кострома ул. Ерохова, 34 (22.0 м) - Фото 2
    1-комнатная квартира, общая площадь 22м², жилая 13м², кухня 4м²

    Однокомнатная квартира в кирпичном доме,Кострома, фабричный район, рядом с ТЦ Галлереяул. Ерохова, рядом с ул. Федосеева, ул. Борьбы, ул. Козуева, ул. Терешковой.В квартире проведена новая электропроводка (имеется проектная документация),заменена половая...
    • 22 м²
    • 1-ком
    • 1/2 эт.
    • кирпичный
    1 900 000 Р
    Агент
    +7 (994) Показать номер
    Посмотреть контакты
    1-к кв. Костромская область, Костромской район, Шунгенское с/пос, с. ... - Фото 1
    1-к кв. Костромская область, Костромской район, Шунгенское с/пос, с. ... - Фото 2
    1-комнатная квартира, общая площадь 42м², жилая 18м², кухня 8м²

    Арт.Уютная однокомнатная квартира в тихом уголке у Костромского моряПредставляем вашему вниманию идеальное жилье для тех, кто ценит спокойствие, природу и возможность окунуться в любимое хобби. Просторная однокомнатная квартира расположена в кирпичном...
    • 42 м²
    • 1-ком
    • 1/2 эт.
    • кирпичный
    1 750 000 Р
    Агент
    +7 (915) Показать номер
    Посмотреть контакты

    Не нашли подходящего объявления?

    Оставьте заявку, и наши риэлторы подберут квартиру в районе Тихого Уголка

    (0)