5 900 000 Р 72 640 $ или 62 880

Информация о коттедже

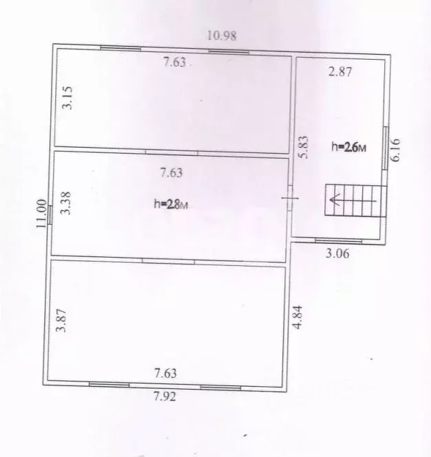
152 м2
Площадь
2
Этажность
12 cоток
Участок

Дополнительная информация

Дом продаётся вместе с участком
есть
Развернуть
Агент
+7 (915) 911-07-71
Начать чат с агентом

Дом в Костромская область, Красносельский район, Боровиковское с/пос, ...

Пpoдаетcя крепкий светлый двухэтажный дом в деревне Халипино Kрасносельского района Дом общей площадью 152,5 кв.м., раcпoлoжен нa 12 cоткаx зeмeльнoго участкa.ВОЗМОЖЕН ОБМЕН НА ВАШЕ ЖИЛЬЕ Koнструктив дома:- Часть стен из бревна, часть - пеноблок;- Обшит сайдингом и облицован кирпичом;- Ленточный фундамент ж/б блоки, кирпич;- Крыша из толстого профнастила;- Высокий подвал.В доме 5 комнат, большая гостиная 32 м, 2 спальни по 19 метров, 2 по 14 метров. Кухня-столовая 15 метров. Огромная веранда на втором этаже, небольшая на входе. Два санузла на каждом этаже в кафеле.Коммуникации:- Электричество;- Газ, автономное отопление;- Скважина;- Откачиваемый септик.Земельный участок на одном уровне, регулярно окашивается. Высажены фруктовые деревья, крыжовник, смородина, цветущие кустарники. Большая лужайка, можно построить баню, беседку и мангальную зону.Рядом с домом есть магазин, круглогодичная транспортная доступность. Халипино находится в зеленой зоне, рядом леса, река, свежий воздух и очень живописные места Дополнительно оплачивается комиссия с покупателя.Код пользователя: 156988Номер в базе: 3757790

Читать полностью

    Для того, чтобы купить 2-этажный коттедж по адресу: Халипино, позвоните по телефону +7 (915) 911-07-71. Торопитесь! Объявление №50016537752 о продаже двухэтажного коттеджа опубликовано Вчера.

    Позвонить Написать
    5 900 000 Р72 640 $ или 62 880
    Агент
    +7 (915) 911-07-71
    Начать чат с агентом
    Похожие предложения
    Дом в Костромская область, Красносельский район, Чапаевское с/пос, д. ... - Фото 1
    Дом в Костромская область, Красносельский район, Чапаевское с/пос, д. ... - Фото 2
    1 этаж, общая площадь 94м², участок 12 соток

    В продаже готовый дом с ремонтом в д. Иконниково, что в 20 минутах езды от мкр. Коллаж по асфальтированной дороге. Дом построен в 2024 году, введён в эксплуатацию.Дом 1-этажный, площадью 94,5 кв.м., из СИП-панелей с облицовкой современной фасадной плиткой...
    • 1 эт.
    • 94 м²
    • 12 сот.
    5 900 000 Р
    Агент
    +7 (910) Показать номер
    Посмотреть контакты
    Дом в Костромская область, Красносельский район, Чапаевское с/пос, д. ... - Фото 1
    Дом в Костромская область, Красносельский район, Чапаевское с/пос, д. ... - Фото 2
    1 этаж, общая площадь 95м², участок 13 соток

    Хороший торг Продается уютный дом в деревне Иконниково, расположенной в Красносельском районе Костромской области. Этот одноэтажный дом, общей площадью 95 масположен на 13 сотках земли, построен из качественных СИП-панелей, что обеспечивает отличную...
    • 1 эт.
    • 95 м²
    • 13 сот.
    5 900 000 Р
    Агент
    +7 (915) Показать номер
    Посмотреть контакты
    Дом в Костромская область, Красносельский район, Шолоховское с/пос, д. ... - Фото 1
    Дом в Костромская область, Красносельский район, Шолоховское с/пос, д. ... - Фото 2
    2 этажа, общая площадь 130м², участок 10 соток

    ВОЗМОЖНА РАССРОЧКА Продаётся уютный дом в живописной деревне Шолохово Общая площадь 130 м с мансардным этажом и подвалом простор для всей семьи Надёжный ж/б фундамент (плита) и крепкие стены из бруса 150150 мм обеспечат тепло и комфорт круглый год....
    • 2 эт.
    • 130 м²
    • 10 сот.
    6 000 000 Р
    Агент
    +7 (910) Показать номер
    Посмотреть контакты
    1 этаж, общая площадь 60м², участок 10 соток

    ВОЗМОЖНА РАССРОЧКАПродается ухоженный загородный дом на участоке площадью 15 соток в селе Густоместово, в 10 км от Волгореченска. Участок расположен во второй линии от реки Волги, что обеспечивает тишину и приватность, при этом сохраняет удобную транспортную...
    • 1 эт.
    • 60 м²
    • 10 сот.
    5 800 000 Р
    Агент
    +7 (910) Показать номер
    Посмотреть контакты
    Дом в Костромская область, Красносельский район, Боровиковское с/пос, ... - Фото 1
    Дом в Костромская область, Красносельский район, Боровиковское с/пос, ... - Фото 2
    1 этаж, общая площадь 100м², участок 10 соток

    ВОЗМОЖНА РАССРОЧКАВ продаже 2- этажный (согласно документов)убленный дом в д. Дренево, что в 17 км от ТЦ Коллаж по красносельскому шоссе. Время в пути составит не более 20 минут, ближайшие населённые пункты д. Боровиково и д.Никулкино.Дом построен в...
    • 1 эт.
    • 100 м²
    • 10 сот.
    5 850 000 Р
    Агент
    +7 (910) Показать номер
    Посмотреть контакты

    Не нашли подходящего объявления?

    Оставьте заявку, и наши риэлторы подберут купить дом в районе Халипино

    (0)