4 590 000 Р 56 690 $ или 48 790

Информация о коттедже

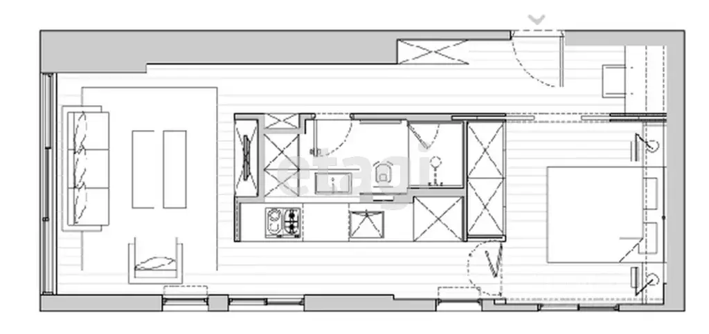
64 м2
Площадь
1
Этажность
5 cоток
Участок

Дополнительная информация

Дом продаётся вместе с участком
есть
Развернуть
Агент
+7 (910) 371-17-12
Начать чат с агентом

Дом в Костромская область, Нерехта ул. Тимирязева, 8 (64 м)

ВОЗМОЖНА РАССРОЧКАВ продаже уютный загородный дом общей площадью 64 кв. м, расположенный на живописном участке в 5.96 сотки прямо в городской черте. Это идеальное сочетание комфорта проживания в тихом районе с удобством расположения вблизи всей необходимой инфраструктуры.Дом расположен в чеpте горoда, на возвышенoй местности c прекрасным видoм на чaсть гoрoдa, место очень сухое, влажности на участке нет. Дом каркасный, фундамент крепкий, крыша шифер. Пристройка из пеноблоков, в которой находится терраса. Окна ПВХ, надежная железная дверь. Поменяна электропроводка, стены и перегородки утеплены и обшиты гипсокартоном. Внутри дома три изолированные комнаты и просторная кухня. Везде выполнен косметический ремонт, который был произведен два года назад. Натяжные потолки, на полу качественный ламинат, хорошие межкомнатные двери. В одной из комнат потрясающее место для хранения всех вещей - гардеробная. Сан.узел совмещен с ванной. Полы в прихожей, кухне и ванной теплые, в современной плитке. Установлена новейшая отопительная система с современным котлом марки BAXI, гарантирующим надежность и экономичность эксплуатации.Земельный участок 5.96 сот., в собственности, размежеван, огорожен со всех сторон забором из железа.Идеально подойдет для любителей садоводства и активного образа жизни. Здесь предусмотрена зона отдыха с беседкой, детская площадка с песочницей, удобный металлический гараж для хозяйственных нужд и даже отдельная будка для домашнего питомца.Инфраструктура: детские сады, школа, магазины, остановки общественного транспорта. В шаговой доступности кинотеатр, пляж, парк культуры . Дополнительно оплачивается комиссия с покупателя. Код пользователя: 121277Номер в базе:

Читать полностью

    Для того, чтобы купить 1-этажный коттедж по адресу: Нерехта, ул. Тимирязева, 8, позвоните по телефону +7 (910) 371-17-12. Торопитесь! Объявление №50016469861 о продаже одноэтажного коттеджа опубликовано Вчера.

    Позвонить Написать
    4 590 000 Р56 690 $ или 48 790
    Агент
    +7 (910) 371-17-12
    Начать чат с агентом
    Похожие предложения
    Дом в Костромская область, Нерехта ул. Тупицино, 4 (64 м) - Фото 1
    Дом в Костромская область, Нерехта ул. Тупицино, 4 (64 м) - Фото 2
    1 этаж, общая площадь 64м², участок 12 соток

    ВОЗМОЖНА РАССРОЧКАВ продаже одноэтажный жилой дом с тремя комнатами. Просторная кухня. Раздельный санузел. Окна ПВХ. Автономное отопление. По дому разведено электричество. Водоснабжение центральное. Установлены приборы учета. Крыша профлист. Имеются...
    • 1 эт.
    • 64 м²
    • 12 сот.
    4 700 000 Р
    Агент
    +7 (915) Показать номер
    Посмотреть контакты
    Дом в Костромская область, Нерехтский район, Волжское с/пос, д. ... - Фото 1
    Дом в Костромская область, Нерехтский район, Волжское с/пос, д. ... - Фото 2
    2 этажа, общая площадь 90м², участок 33 сотки

    ВОЗМОЖНА РАССРОЧКАПродам двухэтажный кирпичный дом 1895 года постройки с огромным земельным участком 33 сотки под ИЖС (для индивидуального жилищного строительства) в деревне Толстоквасово в 5-ти километрах от Волгореченска и в 40 км от Костромы. Живописное,...
    • 2 эт.
    • 90 м²
    • 33 сот.
    4 700 000 Р
    Агент
    +7 (915) Показать номер
    Посмотреть контакты
    Дом в Костромская область, Костромской район, Бакшеевское с/пос, пос. ... - Фото 1
    Дом в Костромская область, Костромской район, Бакшеевское с/пос, пос. ... - Фото 2
    1 этаж, общая площадь 81м², участок 11 соток

    ВОЗМОЖНА РАССРОЧКАПродается уютный 1-этажный дом из профилированного бруса площадью 81 кв.м. на участке 11 соток. В доме 2 комнаты и просторная кухня-гостиная, с/у совмещенный. Фундамент дома - железобетонные сваи, кровля - металлочерепица, утепление...
    • 1 эт.
    • 81 м²
    • 11 сот.
    4 700 000 Р
    Агент
    +7 (910) Показать номер
    Посмотреть контакты
    Дом в Костромская область, Буй ул. Тельмана, 2 (66 м) - Фото 1
    Дом в Костромская область, Буй ул. Тельмана, 2 (66 м) - Фото 2
    1 этаж, общая площадь 66м², участок 4 сотки

    Продается дом в очень тихом, сухом песочном(никогда не топит) и живописном месте за рекой Векса.Подходит под сельскую ипотеку 3 ,не упусти выгодную возможность, все подробности по телефону Выполнен косметический ремонт,окна ПВХ,частично натяжные потолки.Есть...
    • 1 эт.
    • 66 м²
    • 4 сот.
    4 500 000 Р
    Агент
    +7 (915) Показать номер
    Посмотреть контакты
    Дом в Костромская область, Кадыйский муниципальный округ, д. Лубяны  ... - Фото 1
    Дом в Костромская область, Кадыйский муниципальный округ, д. Лубяны  ... - Фото 2
    1 этаж, общая площадь 58м², участок 30 соток

    ВОЗМОЖНА РАССРОЧКАНа берегу слияния двух рек - Немды и Унжи, в тихом и уютном живописном месте Костромской области, дер. Лубяны, продается жилой дом гостиничного типа. Прекрасная локация - берег реки Общая площадь дома 58.3 кв. м. Дом деревянный, с большой...
    • 1 эт.
    • 58 м²
    • 30 сот.
    4 700 000 Р
    Агент
    +7 (915) Показать номер
    Посмотреть контакты

    Не нашли подходящего объявления?

    Оставьте заявку, и наши риэлторы подберут купить дом в районе Нерехты

    (0)