25 000 000 Р 336 500 $ или 282 300

Информация об помещении

4
Этаж

Состояние и оснащение

Количество этажей
4
Развернуть
Агент
+7 (915) 911-03-84
Начать чат с агентом

Помещение свободного назначения в Костромская область, Нерехта ...

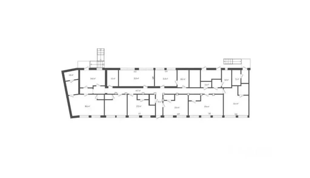
ВОЗМОЖНА РАССРОЧКАВ продаже коммерческое, четырехэтажное, кирпичное здание, Свободного назначения 1996 года постройки. Общая площадь здания 2345 кв.м.- Цокольное помещение площадью 580 кв.м. включает в себя котельную, несколько кабинетов, сейфовое хранилище. - Первый этаж площадью 592 кв.м. Просторное, хорошо освещенное помещение, ранее использовалось как кассовая зона банка.- Второй этаж включает в себя 16 кабинетов и 2 санузла. - Третий этаж площадью 594 кв.м. включает в себя 20 кбинетов, санузел, актовый зал и серверная. - До недавнего времени в здании находилось отделение Сбербанка.- Здание полностью оборудовано под банковский офис или иное финансовое учреждение ( имеется видеонаблюдение, сигнализация, бронированная касса, комната хранения денежных средств, кабинет инкассаторов, спецзащита окон, дверей, и т.д.).- Подходит под офис крупной компании, медицинский центр, ювелирную компанию, гостиницу, хостел. - Возможен перевод в ИЖС, переделка помещений займёт от 6 до 10 месяцев ( своей строительной организацией).- Помещение расположено на центральной улице города ( первая линия ), рядом остановки общественного транспорта, имеются социально-значимые объекты города ( Рождественская часовня, Спортивный комплекс, аптеки, магазины, многоэтажные дома).- Высота потолков в здании от 3 до 6 метров. - Электричество 220,380 Вт.- Мощность 52 кВт. Есть возможность увеличить мощность.- Имеется собственная газовая котельная в цокольном этаже. АОГВ, 2 котла Kalard VR 8 чугунные.- Сделана поверка счётчиков до 2030 года. - Канализация центральная.- Окна двойные, в деревянных рама. Дополнительно оплачивается комиссия с покупателя. Код пользователя: 95162Номер в базе: 3927219

Читать полностью
    Позвонить Написать
    25 000 000 Р336 500 $ или 282 300
    Агент
    +7 (915) 911-03-84
    Начать чат с агентом
    Похожие предложения
    Помещение свободного назначения в Костромская область, Кострома ул. ... - Фото 1
    Помещение свободного назначения в Костромская область, Кострома ул. ... - Фото 2
    ВОЗМОЖНА РАССРОЧКАПродам отдельно стоящее здание с земельным участком.Общая площадь здания 482 кв.м.Земельный участок 5.01 сотки.Технические характеристики:Заведенная электрическая мощность 18 кВт.Высота потолков:- цокольный этаж - 2.3 м,- 1 и 2 этажи...
    • 1/2 эт.
    25 000 000 Р
    Агент
    +7 (910) Показать номер
    Посмотреть контакты
    Помещение свободного назначения в Костромская область, Кострома ул. ... - Фото 1
    Помещение свободного назначения в Костромская область, Кострома ул. ... - Фото 2
    ВОЗМОЖНА РАССРОЧКАПродам отдельно стоящее здание свободного назначения с З/У.Общая площадь здания 289 кв.м.Площадь З/У - 10 соток.Все в собственности. Этажи одинаковой площадью по 144,5 кв.мПланировка кабинетная, с возможностью объеденения отдельных помещений.Ремонт...
    • 1/3 эт.
    25 000 000 Р
    Агент
    +7 (910) Показать номер
    Посмотреть контакты
    Помещение свободного назначения в Мордовия, Саранск просп. Российской ... - Фото 1
    Помещение свободного назначения в Мордовия, Саранск просп. Российской ... - Фото 2
    Предлагаем помещение свободного назначения в новом микрорайоне Юбилейный города Саранска Помещение на ВТОРОМ этаже со свободной планировкой в многоквартирном жилом доме. Сильные стороны данного помещения:- возможность зонирования пространства,- несколько...
    • 2/19 эт.
    25 000 000 Р
    Агент
    +7 (901) Показать номер
    Посмотреть контакты
    Помещение свободного назначения в Омская область, Омск бул. ... - Фото 1
    Помещение свободного назначения в Омская область, Омск бул. ... - Фото 2
    Компания Регион Бизнес Недвижимость Предлагает приобрести, помещение свободного назначения на первом этаже с отдельным входом. Все коммуникации, 50 квт электричества. Густонаселенный жилмассив, отличный пешеходный трафик, парковка. Возможно...
    • 1/9 эт.
    24 900 000 Р
    Агент
    +7 (913) Показать номер
    Посмотреть контакты
    Помещение свободного назначения в Волгоградская область, Калачевский ... - Фото 1
    Помещение свободного назначения в Волгоградская область, Калачевский ... - Фото 2
    Номер объекта: 539374. Продажа гостиницы Пятиморск.Расстояние от Волгограда 70 км Калач-на-Дону 7 кмПосёлок расположен на берегу Волго-Донского канала, где находится 13 шлюз из 15 Волго-Донского канала.Гостиница расположена на Первой линии Пятиморска,...
    • 1/3 эт.
    25 000 000 Р
    Агент
    +7 (918) Показать номер
    Посмотреть контакты

    Не нашли подходящего объявления?

    Оставьте заявку, и наши риэлторы подберут псн в районе Нерехты

    (0)